- Artikel-Nr.: SW10370
LE MicroHouse – mehr Raum auf 4,00 m Breite. Das LE MicroHouse 2026 steht für stilvolles, kompaktes und durchdachtes Wohnen mit einem spürbaren Plus an Komfort. Mit seinen 12,00 x 4,00 m vereint dieses Hausmodell klare Architektur, eine moderne Außenwirkung und ein großzügigeres Raumgefühl, als man es von einem klassischen Microhouse erwarten würde.
Mehr Breite. Mehr Möglichkeiten. Mehr Wohnqualität.
Mit dem LE MicroHouse 2026 präsentiert Living Exclusive ein modernes Hauskonzept für alle, die kompakt bauen und dennoch nicht auf Wohnkomfort verzichten möchten. Die 4,00 m Breite schafft ein deutlich offeneres Raumgefühl, bessere Möblierungsmöglichkeiten und eine alltagstaugliche Grundrissqualität.
Der offen gestaltete Bereich für Wohnen und Küche, der separate Schlafbereich, der funktionale Flur sowie das kompakte Bad-/WC-Konzept machen dieses Microhouse zu einer attraktiven Lösung für modernes, reduziertes und hochwertiges Wohnen.
Das LE MicroHouse – kompakt geplant, hochwertig gedacht
Das LE MicroHouse wurde für Bauherren entwickelt, die auf kleiner Fläche eine stilvolle und funktionale Wohnlösung suchen. Die klare Architektursprache, die moderne Formensprache und die harmonischen Proportionen verleihen dem Haus einen hochwertigen und zeitgemäßen Charakter.
Durch die kompakte Kubatur eignet sich das Konzept hervorragend für unterschiedlichste Einsatzbereiche – vom privaten Wohnhaus bis zur attraktiven Ferien- oder Gästeeinheit.
Ihre Vorteile mit dem LE MicroHouse 2026
- Mehr Raumgefühl durch 4,00 m Breite: Im Vergleich zu schmaleren Hauskonzepten bietet das LE MicroHouse spürbar mehr Bewegungsfreiheit und eine angenehmere Raumwirkung.
- Durchdachter Grundriss: Die Raumaufteilung verbindet Offenheit und Funktionalität mit einer klaren Trennung zwischen Wohnen, Schlafen und Sanitärbereich.
- Moderne Architektur: Geradlinige Gestaltung, große Fensterflächen und eine klare Außensprache sorgen für eine wertige, zeitlose Wirkung.
- Vielseitig nutzbar: Das LE MicroHouse eignet sich als kompaktes Wohnhaus, Ferienhaus, Gästehaus, Mikro-Wohneinheit oder hochwertiger Zweitwohnsitz.
- Individuell denkbar: Je nach Grundstück, Bedarf, Ausstattungswunsch und Budget können auch weitere passende Haustypen aus dem LE-Portfolio vorgestellt werden.
Architektur & Charakter
Das LE MicroHouse steht für eine moderne, geradlinige Architektursprache mit klaren Proportionen und hochwertiger Außenwirkung. Die dargestellte Kombination aus reduzierter Formsprache, großen Fensterflächen und zeitgemäßer Materialanmutung verleiht dem Haus einen eleganten, urbanen Charakter. Gleichzeitig wirkt das Gebäude durch seine kompakte Kubatur ruhig, effizient und gut in unterschiedliche Umgebungen integrierbar.
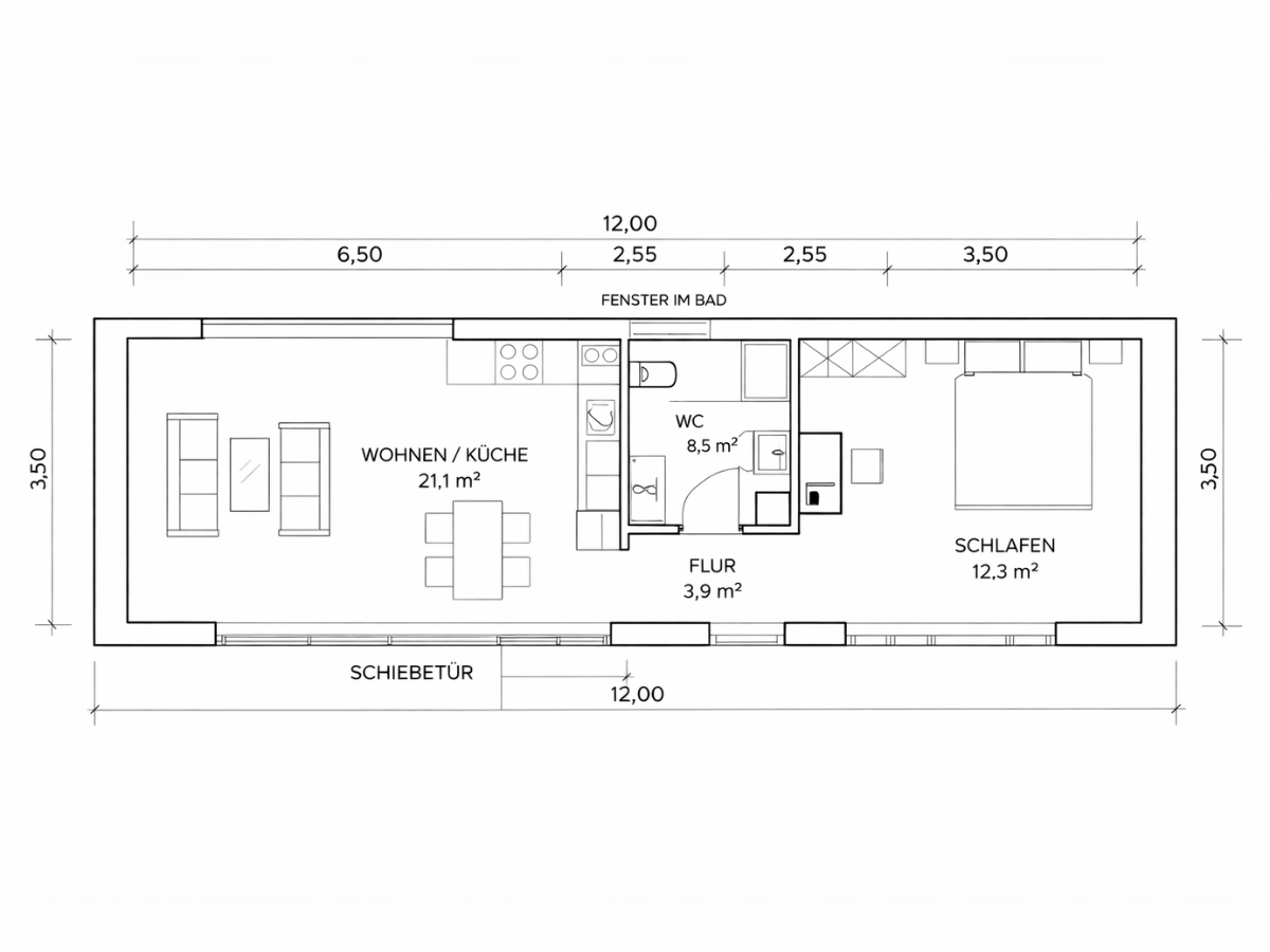
Grundriss & Raumgefühl
Mit seinen 12,00 x 4,00 m bietet das LE MicroHouse eine durchdachte Aufteilung mit gut nutzbaren Wohnzonen. Der Grundriss sieht einen offenen Bereich für Wohnen / Küche, einen Flur, ein WC-/Badsegment sowie einen separaten Bereich Schlafen vor. Gerade die 4,00 m Breite sorgt dabei für ein Wohngefühl, das deutlich großzügiger wirkt, als man es bei einem MicroHouse erwarten würde.
Für wen eignet sich das LE MicroHouse?
- Singles oder Paare mit dem Wunsch nach reduziertem, modernem Wohnen
- Bauherren, die kompakt und effizient bauen möchten
- Ferienhaus- und Wochenendhauskonzepte
- Erweiterungen auf bestehenden Grundstücken
- Vermietungs- und Gästekonzepte mit hochwertigem Anspruch
Warum das LE MicroHouse besonders ist
Viele kompakte Hauslösungen konzentrieren sich ausschließlich auf minimale Fläche. Das LE MicroHouse geht bewusst einen anderen Weg: Es verbindet kompakte Bauweise mit einem spürbaren Mehr an Wohnkomfort, Designqualität und Alltagstauglichkeit.
Gerade die 4,00 m Breite macht dieses Hausmodell besonders interessant für alle, die zwar kleiner, aber nicht zu eng wohnen möchten.
Mehr MicroHouse. Mehr Raumgefühl. Mehr Wohnqualität.
Das LE MicroHouse 2026 mit 12,00 x 4,00 m wurde für alle entwickelt, die kompaktes Wohnen mit einem spürbaren Plus an Komfort verbinden möchten. Der offene Wohn-/Küchenbereich, der separate Schlafraum, das kompakte Badkonzept und die klare Architektur machen dieses Haus zu einer attraktiven Lösung für modernes Wohnen auf kleiner Fläche.
Mehr als nur ein Haustyp – weitere LE Hausvarianten verfügbar
Das LE MicroHouse 2026 ist Teil eines größeren Portfolios moderner Hauskonzepte von Living Exclusive. Je nach Ihren persönlichen Präferenzen können auch weitere Haustypen vorgestellt werden, die besser zu Ihrem Flächenbedarf, Ihrer gewünschten Nutzung, Ihrem Designanspruch oder Ihrem Budget passen.
So erhalten Sie nicht nur ein einzelnes Hausmodell, sondern auf Wunsch genau die Lösung, die am besten zu Ihrem Vorhaben passt.
Showroom vorab virtuell erleben
Bereits vor einem persönlichen Gespräch können Sie einen Teil unseres Showrooms virtuell begehen und sich einen ersten Eindruck von Stil, Materialien und Atmosphäre verschaffen:
Für eine persönliche Besprechung und weitergehende Projektabstimmung finden Sie hier den passenden Kontakt:
Jetzt Kontakt aufnehmen und beraten lassen
Interesse am LE MicroHouse 2026?
Gerne stellen wir Ihnen weitere Informationen, Grundrissvarianten und passende Ausstattungsoptionen vor. Auf Wunsch prüfen wir auch, welche LE-Haustypen am besten zu Ihrem Flächenbedarf, Ihrem Budget und Ihren gestalterischen Vorstellungen passen.
Beratung zum LE MicroHouse anfragen
Unsere dargestellten Cube-Realisierungen passen nicht zu Ihren Vorstellungen oder Voraussetzungen?
Wir realisieren für Sie auch weitere individuelle oder pragmatische Lösungen.
(Beim Anklicken verlassen Sie den Shop von Living Exclusive und werden auf die Homepage von Living Exclusive weitergeleitet)
